新闻中心

NEWS CENTER

行业新闻 企业新闻 通知公告

池州市人民医院:“精细化外科手术”,老城区医疗建筑的重构更新

添加时间:2024-04-25浏览次数:467次

01


池州市唯一一所“三级甲等”综合性医院


池州市人民医院坐落在池州市主城区中心地带,古池州十景之一的百荷公园旁,为池州市唯一一所“三级甲等”综合性医院,是池州市医疗急救、教学科研和健康管理中心。


图片
图片
图片


山东省院七院对这座老院区进行了“手术刀式”的精细化重构设计。设计内容包含了既有建筑改造、急救中心新建、医疗动线重构及景观环境提升等,是老城区医院改造提升的典型案例。


图片

医院现状鸟瞰图



02


现状与问题:功能、流线混乱,风格迥异


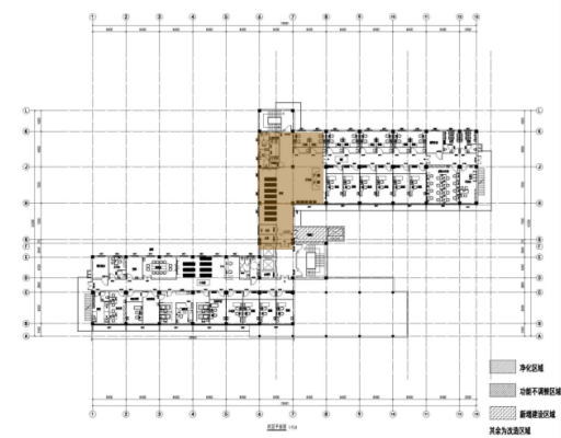
院区主要楼座围绕中心广场散落布置,功能分区不明,流线组织混乱。患者就医存在较多的穿科室、走室外的现象。现有建筑设计风格及设计年代迥异,整体性较弱。新建的内科病房楼与急救中心与原有2号楼与3号楼的设计年代相差近20年,立面效果相差较大。2号楼与3号楼建筑形象色彩陈旧。南入口广场及院前道路交通拥堵,缺乏统一的组织。


图片

现状总平面及功能图


设计团队立足现状、着眼未来,采用分步改造实施的策略,对整个院区进行了整体的规划设计。通过设计,力求塑造一所能够展示池州医院特色、体现现代化医疗服务水平的综合性医院。



03

老城区医院的重构更新


(一)架构医院流线的主动脉


面对院区散落的现状建筑,建筑师在各个楼座之间植入医疗连廊,架构了医院流线的“主动脉”。该连廊如同脊骨一般,串联起了各个重要功能单元,提高了患者就医的便捷性。


图片

医疗连廊图

图片

立体交通分析图

图片
图片

医疗连廊鸟瞰图


(二)改造2、3号楼


2、3号楼有着20多年的历史,设计师保留其主体结构,于内部植入全新的功能科室。该楼位于几个主要楼座的中间位置,患者使用非常方便。


打破原有建筑内部的功能格局,相当于对建筑做一次“大手术”。设计师进入工程一线考察,仔细研究现场的每一道墙体每一块地板,并详细咨询科室的意见。在充分调研的基础上,制作符合医疗流程的平面布局图纸,塑造全新的医疗工艺流线。


图片
图片

功能检查科效果图

图片
图片

患者走廊效果图

图片
图片

B超检查效果图

图片
图片

交通电梯厅效果图

图片
图片

日间病房效果图

图片
图片

病房效果图


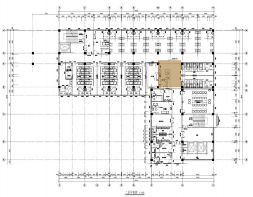
改造完成后,院区形成了以医技功能为核心,内科楼、体检中心、急诊、外科住院分列布置的功能格局。患者就诊路线短捷,医院运营更高效。


图片

功能区划图


(三)建设急救中心大楼


医疗连廊向南延伸可以连接急救中心。作为池州市主城区中心地带的三甲医院,池州市人民医院承担起了全市区人民的急救任务。现有的急救楼建设年代久远,内部空间局促,已经不能满足现代化急救中心的空间要求。本工程将其拆除,建设面积约2万平方米的急救中心大楼。新建大楼位于城市两条主干道的交叉路口,交通便利,辨识度较高。


图片

总平面图


新建急救中心开设急救绿色通道,满足快速高效的救治要求。独立的急诊手术电梯可将患者送达手术室,为患者争取宝贵时间。抢救室与急诊影像科临近布置,影像科人员可以快速地使用床旁影像设备对患者进行检查。EICU设置靠近抢救室与苏醒室的位置,做完手术后患者可快速地进入EICU进行监护,对患者的监护没有中断,避免了危险情况的发生。此外,急救中心还开设急诊病床150床。


图片

急救中心鸟瞰图

图片

主入口人视图


(四)梳理交通停车、提升环境品质


医院建筑改造扩建完成后,设计师着手梳理院区的交通并提高环境品质。患者经门诊前广场到达建筑内部,通过连廊到达各门诊及医技楼座。连廊的路线简洁唯一,识别性强,方便快捷。外来探视人员由东侧探视广场进入住院公共大厅,路线清晰明了。洁物及工作人员分别通过门诊医技部外围进入,与患者流线适度分隔,各行其道。污物进行收集,最后集中并由院区污物出口送出。


图片

改造后总平面交通图


由于院区现有停车位数量不足,设计于“中心绿地”的地下建设停车场,解决患者“停车难”问题。地下停车场预留接驳口,将来可与远期车库进行连通。


图片
图片
图片

上图LOFT车库剖面图 下图 LOFT车库实景图


地下车库采用先进的LOFT车库的设计理念,总层高约13米,可平层停入四层机动车。相较于原始的机械停车或平层停车,使用方便的同时减少开挖土方量,节省了工程投资。


图片
图片
图片
图片

中心共享公园实景

图片

中心共享公园效果图


地下车库的上方设计为中心共享公园,为住院患者提供休憩疗愈的场所。大片景观绿地广场,结合建筑单元之间的景观花园,形成一个点面结合的立体景观系统。共享花园、池水景观等使整个组团成为一个会呼吸的医院,充分体现生态医院的特点。



04


环境提升,体验改善:老城区的医院重新焕发生机


池州市人民医院项目通过整体改造提升,使一所54年历史的老城区医院重新焕发了生机。医院的环境品质及交通状况得到了极大的改善。在院区内部充分利用尚可使用的旧建筑,节约了建筑材料和大量能源,缩短了建设工期,实现了绿色医院的设计目标。改造完成后精心设计的建筑空间、过硬的软硬件设施、细分的专业科室,使患者就医环境得到明显改善。



上一篇:重庆市残疾人康复中心一期工程计划今年7月试运营

下一篇:泰国拉差弗鲁克医院:为患者和用户创造像家一样平静的康复环境

版权所有:中健数字(重庆)健康科技有限公司 公安备案:渝公安备案 50010602501228
备案编号: 渝ICP备2023015282号-1 投诉电话: 023-65422996